събота, 31 март 2012 г.

Вила "Weekend House" в Словакия

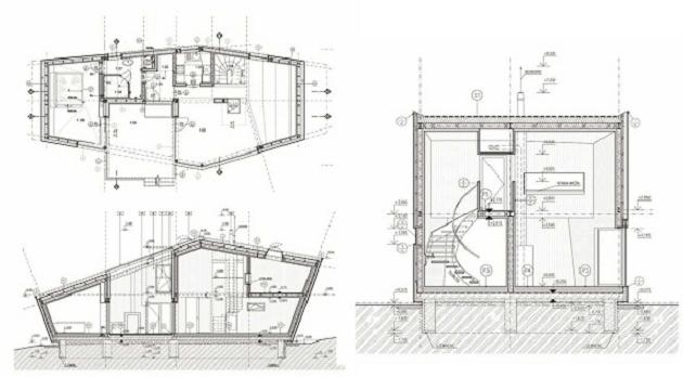
"Weekend House" е вила построена по проект на специалистите от словенското архитектурно студио "Pokorny Architekti". Елегантната къща с минималистична визия е разположена в близост до постоянното жилище на собственика - в малкото селце Nosice с изглед към живописните планини Javorniky Mountains (Словакия).
Живеещ и работещ в динаминичната и шумна Братислава, възложителя е направил логичен избор за локацията на своя извънградски дом - тихо и уединено място, обкръжено от красива природа.
Двуетажната къща не прилича на съседните постройки, но и не влиза в дисонанс с тях, a деликатно се отличава с интелектуални ракурси и естествена монументалност, която я родее с величествената осанка на планинския релеф. Топлият  интериор изпълнен от дърво, хармонизира връзката с природата. Просторната гостна е основен притегателен център, предразполагащ към сърдечни срещи в семеен кръг или с приятели.
Благодарение на откритата планировка кухненската зона и столовата са приобщени към пространството на гостната, решение способстващо за семейно сплотяване и диалогичност.
Асиметрично решената структура разполага с открит атриум, декориран със слоести панели от бор и лиственица, изпълняващи и топлоизолиращи функции. Изборът на натуралните материали подчертава близостта с природата. Къщата е оборудвана със сауна и джакузи, а територията около "Weekend House" предлага всичко необходимо за комфортна почивка на открито.
С творчеството на авторите може да се запознаете на уеб адрес: www.pokornyarchitekti.sk
Източник и илюстрации: www.novate.ru












неделя, 18 март 2012 г.

Най-скъпият град в Германия

13 от най-големите градове в Германия бяха класирани по стандарт на живот в наскоро проведено проучване, съобщава Агенция КРОСС. В изследването са сравнявани 15 показателя - от цената на хляба и бирата, и на билетите за театър и градски транспорт до наемите и сумите, плащани за детска градина.
Класацията за най-скъп град води Мюнхен. Столицата на Баден-Вюртенберг - Щутгарт държи първенството по цени на хотели. В Хамбург не е изгодно да се ходи на кино, тъй като билетът стартира от 14 евро. В Майнц - столицата на Райнланд-Пфалц не е желателно да се ползва такси. Сравнително изгодни условия за живот предлага и столицата Берлин.
Източник: www.cross.bg
Илюстрации: www.wikpedia.org



вторник, 13 март 2012 г.

Най-конкурентните градове по света

Ако сте се питали кои са най-конкурентните градове в света, вече има отговор и на този въпрос. Според класация, публикувана от влиятелния "Economist Intelligence Unit", част от групата, издаваща списание "The Economist", Ню Йорк е на челното място в списъка на най-конкурентните градове по целия свят. На второ място е Лондон, а трети е Сингапур. Четвъртото място си поделят Париж и Хонконг, а на шесто е Токио, последвано от Цюрих, Вашингтон и Чикаго. Челната десетка се затваря от американския град Бостън. В класацията в първите десет не е включен нито един руски град, съобщава ИТАР-ТАСС. При създаването на класацията "Economist Intelligence Unit" използва редица разпоредби, включително възможност за жителите на града да си намерят добре платена работа, осигуряването на финансова стабилност, наличието на инвестиционен капитал. Отчитат се и транспортната система, социалното положение, нивото на културата, екологията и ефективната правна система.
Източник: www.cross.bg
Илюстрация: http://ru.wikipedia.org

понеделник, 12 март 2012 г.

Дървена къща "Eco Perch"

Нещо средно между хамбар и хижа са създали творците от студио "Blue Forest". Симпатичната къщичка, наречена "Eco Perch" се монтира за по-малко от 5 дни. Предназначена е за четири обитатели. Разпределението и включва кухня, санитарен възел, спалня, дневна зона и складово помещение.
Източник и илюстрации: http://www.etoday.ru






Интересен пешеходен мост в Китай

Специалистите от компанията "L&A Design Group" са проектирали впечатляващ пешеходен мост, хармонично допълващ Xidong Park, разположен в центъра на град Уси, принадлежащ към китайската провинция Цзянсу. Ефектната конструкция свързва  южната и северната част на парка, разделени от живописно езеро.
В централната част на мост е оформен неголям остров, от който се открива чудесна гледка към езерото и парковата територия. На островчето е предвидено място и за малка кафетерия.
Креативните проектанти са успели да придадат на мостовото съоръжение динамичен и запомнящ се архитектурен образ.
Оставена е достатъчна височина над острова, за да е възможно преминаването на лодки.
При предстоящото строителство се планира използването на леки метални конструкции, които ще бъдат покрити с панели в светъл нюанс. За конструкцията на пейките е избран дървен материал. Особено внимание е отделено на художественото осветяване на съоръжението.

Източник и илюстрации: http://www.arhinovosti.ru






събота, 3 март 2012 г.

Паметникът на свободата

Паметникът на свободата (известен като Паметникът на Шипка) е монументална скулптура на връх Шипка. Издигнат е във връзка с драматичните военни събития от Руско-турската освободителна война. Паметникът е част от Националния парк-музей Шипка.
Паметникът е издигнат с цел да увековечи подвига на падналите за свободата на България на мястото отбранявано по време на Шипченската битка, около което са се разиграли решаващите Руско-турската освободителна война боеве през лятото на 1877 г., които и в крайна сметка решават освобождението на България и нейното бъдеще.
Основният камък на паметника е положен на 26 август 1922 г. и завършва през 1930 г. На 26 август 1934 г. паметникът на връх "Свети Никола" е тържествено открит от държавния глава Борис III.
През 1920 г. живите ветерани-опълченци се събират на нов конгрес и решават да се построи Паметник на свободата на връх Шипка. Средствата за изграждане на паметника са събирани като доброволни дарения от целия народ. Конкурсът за паметника е спечелен от архитект Атанас Донков и скулптора Александър Андреев, който заедно с Кирил Шиваров изпълнява монументалната фигура на лъва. Паметникът е открит тържествено през 1934 г. Той представлява голяма кула от доломит с форма на пресечена пирамида, с височина 31,5 m. Над входа на кулата стои огромен бронзов лъв с дължина 8 m и височина 4 m, а на другите страни на кулата са изписани местата на големите сражения - Шипка, Стара Загора, Шейново. Женска фигура олицетворява Победата над турските войски. На приземният етаж на паметника стои голям мраморен саркофаг, в който се пазят част от костите на руските воини и българските опълченци. Над него има още 4 етажа, на които са разположени някои копия на български бойни знамена и други реликви. На върха на кулата се открива прекрасна панорама на върха Шипка и околността.
Националните паметници при Шипка са обвързани със събития от изключителна обществена значимост. Тяхното построяване е плод на съвместните усилия на архитекти, скулптори и целия признателен български народ. Природните забележителности в района и историческите събития се преплитат, за да се превърнат в едно от най-силно заредените места у нас, една от най-големите туристически забележителности.

Източник: http://bg.wikipedia.org/wiki/Паметник_на_свободата
Илюстрации: http://bg.wikipedia.org/wiki/Паметник_на_свободата ; http://ru.wikipedia.org/wiki/Памятник_свободы_(Шипка) ; http://commons.wikimedia.org/wiki/Category:Shipka_Pass?uselang=bg  ; http://www.cross.bg
Посетете и www.shipkamuseum.org
Вижте и: Как е построен паметникът на Шипка





ОПЪЛЧЕНЦИТЕ НА ШИПКА
11 август 1877

Нека носим йоще срама по челото,
синила от бича, следи от теглото;
нека спомен люти от дни на позор
да висне кат облак в наший кръгозор;
нека ни отрича исторйята, века,
нека е трагично името ни; нека
Беласица стара и новий Батак
в миналото наше фърлят своя мрак;
нека да ни сочат с присмехи обидни
счупенте окови и дирите стидни
по врата ни още от хомота стар;
нека таз свобода да ни бъде дар!
Нека. Но ний знаем, че в нашто недавно
свети нещо ново, има нещо славно,
що гордо разтупва нашите гърди
и в нас чувства силни, големи плоди;
защото там нейде навръх планината,
що небето синьо крепи с рамената,
издига се някой див, чутовен връх,
покрит с бели кости и със кървав мъх
на безсмъртен подвиг паметник огромен;
защото в Балкана има един спомен,
има едно име, що вечно живей
и в нашта исторья кат легенда грей,
едно име ново, голямо антично,
като Термопили славно, безгранично,
що отговор дава и смива срамът,
и на клеветата строшава зъбът.

О, Шипка!

Три деня младите дружини
как прохода бранят. Горските долини
трепетно повтарят на боя ревът.
Пристъпи ужасни! Дванайсетий път
гъсти орди лазят по урвата дива
и тела я стелят, и кръв я залива.
Бури подир бури! Рояк след рояк!
Сюлейман безумний сочи върха пак
и вика: "Търчете! Тамо са раите!"
И ордите тръгват с викове сърдити,
и "Аллах!" гръмовно въздуха разпра.
Върхът отговаря с други вик: ура!
И с нов дъжд куршуми, камъни и дървье;
дружините наши, оплискани с кърви,
пушкат и отблъскват, без сигнал, без ред,
всякой гледа само да бъде напред
и гърди геройски на смърт да изложи,
и един враг повеч мъртъв да положи.
Пушкалата екнат. Турците ревът,
насипи налитат и падат, и мрът; -
Идат като тигри, бягат като овци
и пак се зарвъщат; българи, орловци
кат лъвове тичат по страшний редут,
не сещат ни жега, ни жажда, ни труд.
Щурмът е отчаян, отпорът е лют.
Три дни веч се бият, но помощ не иде,
от никъде взорът надежда не види
и братските орли не фърчат към тях.
Нищо. Те ще паднат, но честно, без страх -
кат шъпа спартанци под сганта на Ксеркса.
Талазите идат; всичките нащрек са!
Последният напън вече е настал.
Тогава Столетов, наший генерал,
ревна гороломно: "Млади опълченци,
венчайте България с лаврови венци!
на вашата сила царят повери
прохода, войната и себе дори!"
При тез думи силни дружините горди
очакват геройски душманските орди
бесни и шумещи! О, геройски час!
Вълните намират канари тогаз,
патроните липсват, но волите траят,
щикът се пречупва - гърдите остаят
и сладката радост до крак да измрът
пред цяла вселена, на тоз славен рът,
с една смърт юнашка и с една победа.
"България цяла сега нази гледа,
тоя връх висок е: тя ще ни съзре,
ако би бегали: да мрем по-добре!"
Няма веч оръжье! Има хекатомба!
Всяко дърво меч е, всякой камък - бомба,
всяко нещо - удар, всяка душа - плам.
Камъне и дървье изчезнаха там.
"Грабайте телата!" - някой си изкряска
и трупове мъртви фръкнаха завчаска
кат демони черни над черний рояк,
катурят, струпалят като живи пак!
И турците тръпнат, друг път не видели
ведно да се бият живи и умрели,
и въздуха цепят със демонский вик.
Боят се обръща на смърт и на щик,
героите наши като скали твърди
желязото срещат с железни си гърди
и фърлят се с песни в свирепата сеч,
като виждат харно, че умират веч...
Но вълни по-нови от орди дивашки
гълтат, потопяват орляка юнашки...
Йоще миг - ще падне заветният хълм.
Изведнъж Радецки пристигна със гръм.
. . . . . . . . . . . . . . . . . . . . . . . . . . .
И днес йощ Балканът, щом буря зафаща,
спомня тоз ден бурен, шуми и препраща
славата му дивна като някой ек
от урва на урва и от век на век!
*
Иван Вазов